こんにちは。
本日は少し足を伸ばして、お隣の浅草橋の店舗物件のご紹介です。
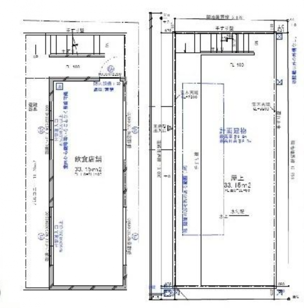
浅草橋駅から駅徒歩1分の好立地に新しく出来た鉄筋コンクリートの3階建物件の3階部分

新築ですので現在はスケルトン状態です!

重飲食も可能ですので、レストランでも焼肉でも可能!
でも、この物件は3階だけではないのです!
なんとルーフバルコニー付き!

駅前の雑居ビルに囲まれてはいますが、しっかり空を望める都市型ルーフバルコニー付きの賃貸物件です!
おしゃれなルーフトップバーやビアガーデン、屋外でBBQ気分な焼肉なんてのもありかと思います!
立地良しな物件で屋上テラスを利用可能な素敵物件!
ぜひ活かしていただける事業者さんお待ちしています!
- 物件名
- Ethica(エチカ)浅草橋
- 賃料
- 445,500円(税込)
- 礼金
- 1ヶ月
- 敷金/保証金
- 保証金:税込賃料10ヶ月分
- 契約形態
- 定期借家契約 7年
- 契約期間
- 7年
- 償却
- 2ヶ月
- 管理費/共益費
- 27,500円
- 交通
- 都営浅草線「浅草橋」駅徒歩1分、JR総武中央線「浅草橋」駅徒歩1分
- 建物面積又は専有面積
- 3F:33.15㎡(先と別途で利用可能面積 3Fバルコニー:11.7㎡、RFルーフバルコニー:33.15㎡)
- 建物構造/規模
- RC造 3階建/3F+RF部分
- 間取り
- スケルトン
- 建築年月
- 2025年9月
- 電気/ガス/上下水
- 電気/都市ガス/本下水
- 引渡日
- 相談
- 備考
-
※補償会社利用必須
※火災保険利用必須
※中途解約違約金あり
- 取引様態
- 媒介(仲介)
- 情報登録日
- 2025-12-21 09:39:00
- 広告主の名称又は商号
- 株式会社エンジョイワークス
- 広告主の事務所の所在地
- 〒248-0014 神奈川県鎌倉市由比ガ浜1-3−1-2F
- 広告主の宅建業法による免許証番号
- 宅建業免許番号:神奈川県知事(3)第28062号
moriyama
兵庫県出身。官民連携した空き家の物件調査や利活用の支援事業では、500件以上の空き家を調査し個々に合わせた活用提案レポートを提出、コンサルティングなどを行う。
日本橋さんかく不動産とは近隣に住居があったこともあり、PLUSLOBBY日本橋問屋街に頻繁に出入りしているうちに意気投合し、2023年7月よりjoin。

